Lo studio di architettura australiano Jack Allen + Cottier, ha progettato la conversione di un magazzino di due piani nel centro urbano di Sydney in una residenza privata, con un guscio bianco scultoreo che nasconde una suite matrimoniale.
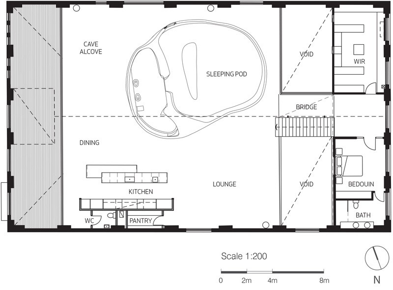
Le sezioni dell’edificio sono state radicalmente modificate per permettere l’ingresso della luce naturale e collegare spazialmente i due livelli, incorporando 4 camere da letto, una grande cucina di tipo professionale, sala musica, una piscina e una terrazza.
Il cliente di Allen Jack + Cottier aveva cercato a lungo un magazzino in città, a differenza di molti aspiranti proprietari di casa a Sydney, il cliente non era ossessionato da una casa con vista sul porto o sul mare.
Piuttosto, ha voluto creare un regno interno, adatto ai suoi interessi nella musica, ed alle visite degli amici.
Inner City Warehouse, questo è il nome dell’antico magazzino, ha iniziato la vita come una luogo di produzione di cibo nel 1900, e successivamente è stato utilizzato come fabbrica di mobili.
L’inserimento più interessante nel magazzino è il guscio per la camera da letto al primo piano. Questa è la suite privata del proprietario, che si inserisce come una scultura nello spazio abitativo principale, con i suoi volumi interni fluttuanti tra le capriate del tetto.
La forma estranea alla geometria ortogonale del vecchio magazzino crea nuovi spazi ma non diminuisce il senso di spazio nel magazzino. La struttura in fibra di vetro rinforzata è autoportante, poggia sul pavimento come un mobile anche se piuttosto grande e pesante.
Il guscio contiene una camera da letto, con un grande letto integrato nel guscio, un armadio e un bagno. Le sue pareti sono tutti spruzzati di resina bianca, il pavimento è di piastrelle di grandi dimensioni in pelle e il pavimento del bagno è in legno di teak.
Anche l’esterno del guscio è in resina bianca, che riflette la luce che cambia dal giorno alla notte, la base illuminata dai led fa apparire il guscio come galleggiare sopra il pavimento. La superficie bianca viene utilizzata come schermo per le immagini proiettate durante gli eventi.
Photo Credit: Castle+Beatty






















