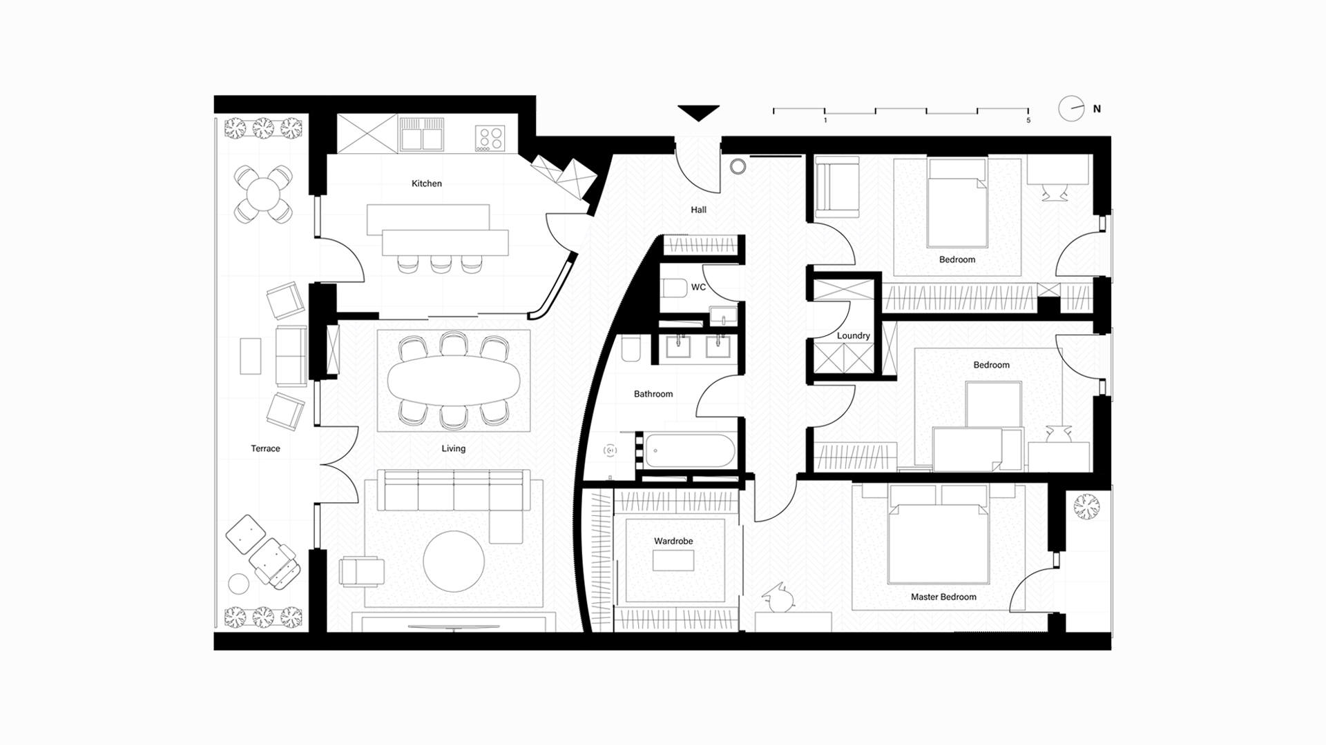
Le pareti diritte della sala da pranzo e della cucina hanno preso una forma curva in modo che la transizione tra l’atrio e il soggiorno sia più agevole. Per creare sottili gradazioni, la parete del soggiorno è a strisce verticali.
Le linee sono applicate anche ad alcune altre pareti e oggetti. I materiali scuri nella spaziosa casa sono giustapposti con forme morbide e sfumature di beige. Le luci intricate sono attaccate ai fogli ovali retroilluminati, che sono stratificati sul soffitto.
Un frigorifero è nascosto dietro le porte di marmo bianco, che imitano lo strato superiore dell’isola della cucina. Gli scaffali sopraelevati sono integrati nella cucina e nelle pareti della sala da pranzo. Le stanze dei bambini hanno colori delicati; mentre le luci a forma di sfera e nuvola sono delicatamente sospese ai soffitti.
























