Lo studio di progettazione di base a Milano Small Architecture ha progettato per un Bed & Breakfast svedese floating sauna, una sauna costruita sopra una piattaforma galleggiante, una piccola struttura dedicata al relax e alla contemplazione. Il tema della sauna galleggiante è molto frequente nei paesi scandinavi, dove le persone non possono vivere senza una sauna, ma si sta diffondendo rapidamente anche in altre zone coinvolgendo sempre di più designer e architetti, tanto che si può parlare di floating sauna design.
La sauna, interamente autocostruita dallo stesso gruppo di progettazione, è il primo di una serie di interventi destinati ad aumentare l’offerta ricettiva di un piccolo Bed & Breakfast in Svezia.
Åmot si trova a circa tre ore di auto a nord di Stoccolma, in mezzo alla foresta svedese, lontano dalle principali rotte turistiche del paese. Per questo motivo i committenti, una coppia belga da pochi anni trasferitasi in Svezia, hanno iniziato a sviluppare diversi progetti finalizzati ad offrire ai clienti del Bed & Breakfast servizi altrimenti impossibili da trovare nelle vicinanze.
La scelta di affidarsi ad un gruppo di progettazione italiano, seppur con precedenti esperienze professionali in Scandinavia, è scaturita dalla volontà dei committenti di reinterpretare e rileggere con occhio critico una tipologia edilizia tipicamente nordica, superando qualsiasi preconcetto.
La scelta di costruire su una piattaforma galleggiante è stata suggerita dal luogo stesso, caratterizzato da una forte pendenza del terreno verso il lago e dalla presenza di un fitto bosco di betulle che avrebbero reso impossibile costruire vicino all’acqua senza interventi troppo invasivi sul terreno. In questo modo oltre a rispettare la natura del luogo, la sauna diventa un ponte tra la terra e l’acqua e si rapporta in egual modo con entrambi gli elementi.
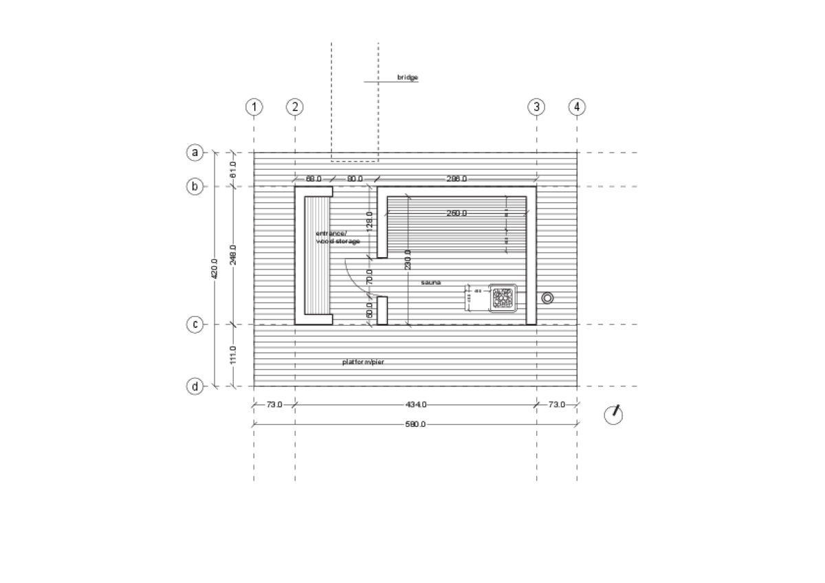
Oltre che spazio per il riposo e la contemplazione, la piattaforma galleggiante serve anche come attracco per canoe e piccole barche, andando a sostituire un vecchio pontile precedentemente installato nella stessa posizione. L’ambiente interno, in grado di ospitare fino a otto persone contemporaneamente, è separato dall’esterno tramite una zona filtro coperta utilizzata come spogliatoio e deposito per la legna.
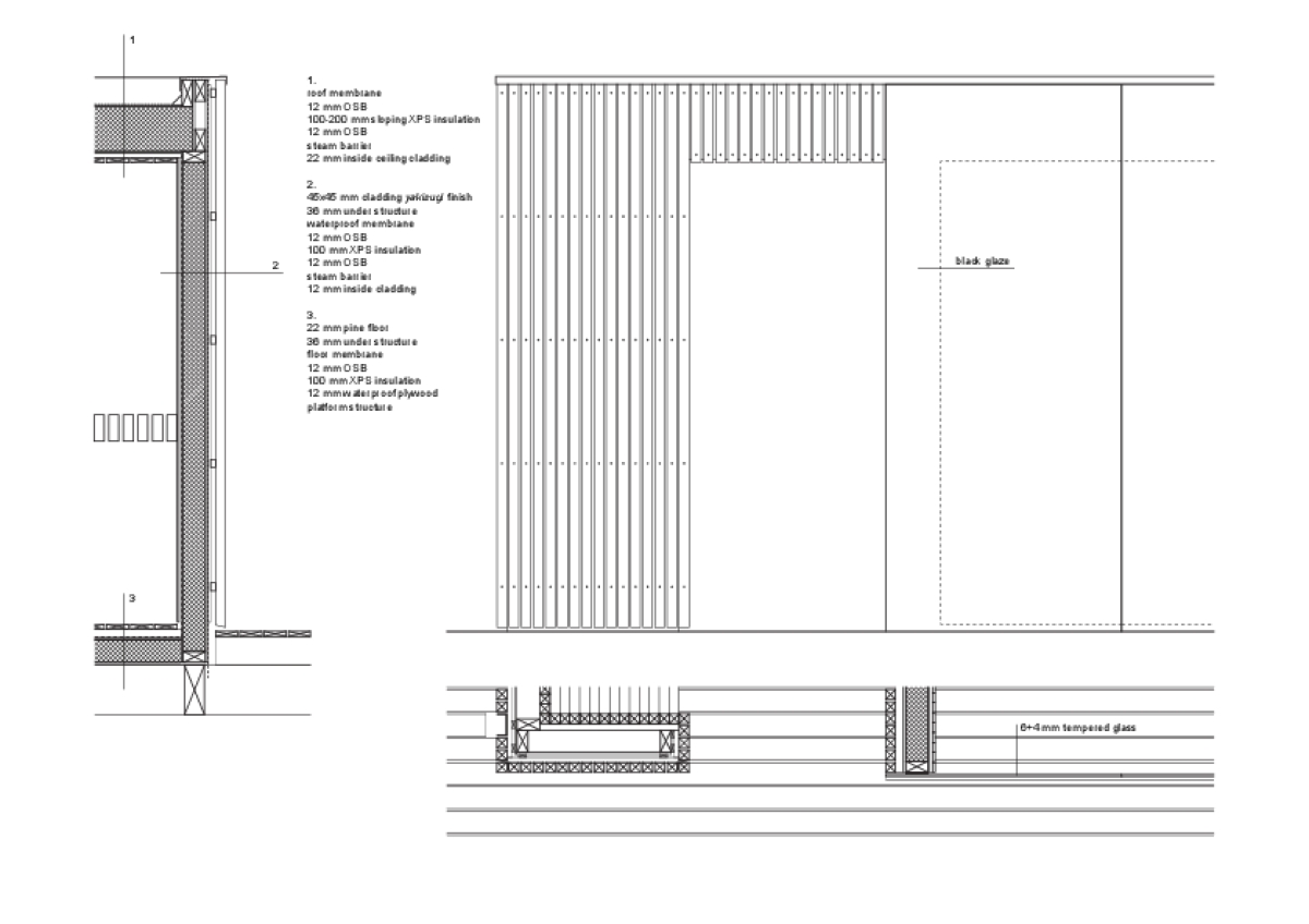
La parete verso il lago è completamente vetrata in modo tale da permettere la contemplazione dell’acqua e del paesaggio indipendentemente dalle condizioni atmosferiche. Mentre la finitura interna è realizzata in legno di ontano, molto simile alla betulla e tradizionalmente usato per i rivestimenti interni delle saune in tutta la Scandinavia, l’esterno trae ispirazione dalla tradizione giapponese.
I listelli verticali in legno di abete sono stati trattati con l’impiego dell’antica tecnica dello Yakisugi che consiste nel bruciare la superficie ossidandola e rendendola inattaccabile da parassiti e resistente agli agenti atmosferici. Oltre ad evitare l’uso di prodotti chimici inquinanti, tale finitura permette di mettere in risalto la struttura del legno e allo stesso tempo la tonalità ottenuta aiuta a mitigare l’impatto visivo della struttura. Anche dal punto di vista cromatico il nuovo intervento diventa un elemento di tramite tra le scure acque del lago e la vegetazione alle sue spalle.
Floating Sauna work in progress
La sauna è stata costruita in poco più di due settimane, grazie alla prefabbricazione dei telai portanti che ne costituiscono la struttura. Questo ha permesso di ridurre il tempo di assemblaggio reso comunque difficile sia dalla conformazione del luogo sia dall’instabilità delle condizioni atmosferiche.
Progetto: Small Architecture Workshop (www.smallarchitecture.it) – G. Marchesi, A. Masperi, V. Panella – Cliente: privato – Luogo: Åmot, Svezia – Area: 11m2 (piattaforma 30 m2) – Anno: 2015


























































