CASA LT by MAIN OFFICE si fonde nel paesaggio tropicale messicano di Sayulita, città molto nota ai serfisti sulla West coast del Messico.
Lo studio di architettura Main Office con sede in Messico e in Svezia ha recentemente ampliato e ristrutturato un complesso residenziale esistente immerso nel lussureggiante verde tropicale messicano. L’edificio si erge sul lungomare e si fonde armoniosamente nella topografia ripida e articolata, con una vista mozzafiato sull’Oceano Pacifico.
Integrando con cura l’architettura con il tranquillo paesaggio tropicale, CASA LT è stata progettata intorno ai palmeti esistenti, i mandorli, i platani e le felci, che si uniscono alla topografia del sito in giocando un ruolo chiave nel garantire una visione del lungomare da tutti i suoi spazi, sia interni che esterni.
Composto da tre piccole case situate sulla cima della collina, il complesso originale costruito negli anni ’50 era in cattive condizioni a causa di problemi di umidità e mancanza di manutenzione. Main Office inizialmente si è focalizzato sul rinnovamento e conservazione dell’essenza originale, e quindi sulla progettazione di un nuovo edificio principale e di una guest house di fronte alla spiaggia nella parte inferiore della proprietà.
“L’idea principale del progetto è di reinterpretare i parametri di progettazione del complesso originale e di mantenere l’idea di un piccolo villaggio all’interno del sito.” dice Dante Borgo, cofondatore dello studio.
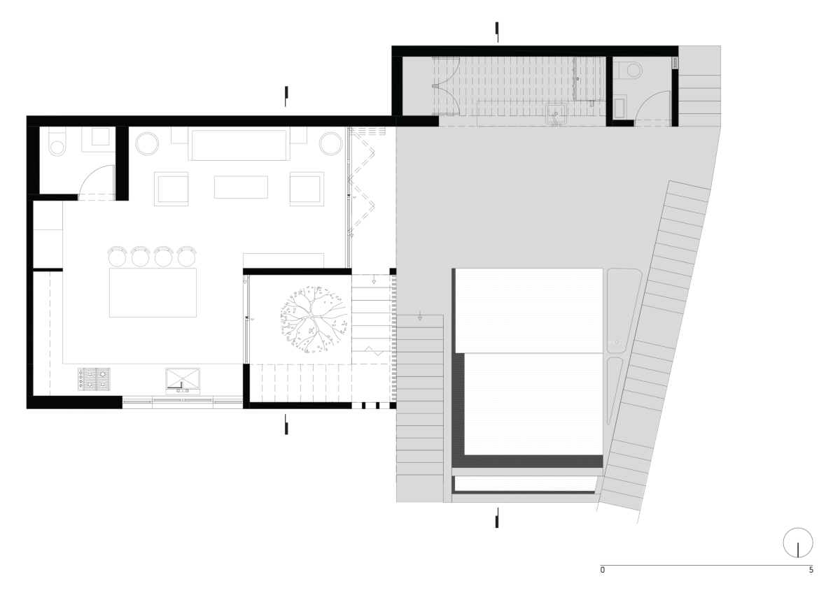
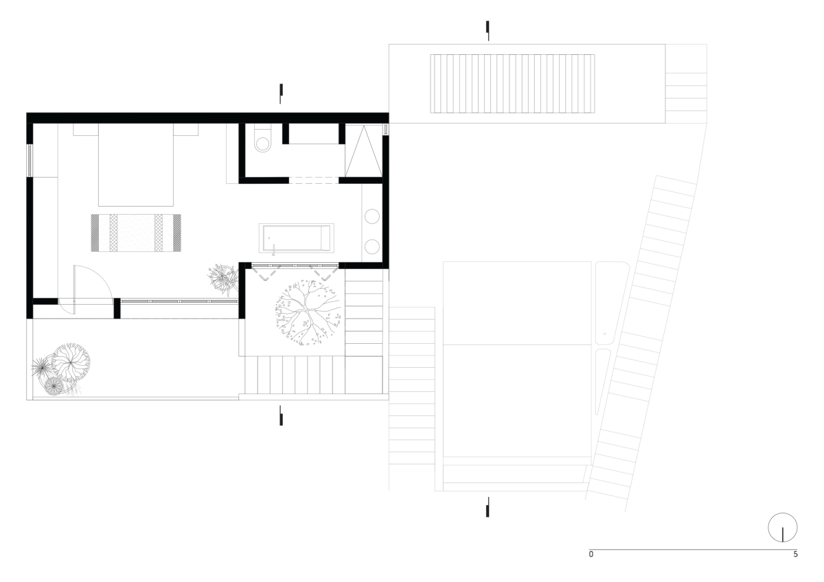
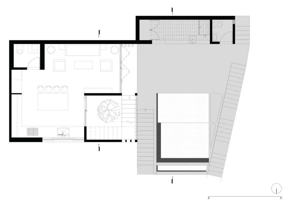
Main Office collega i vari livelli attraverso una serie di piattaforme in cemento che si adattano al topografia, passerelle e giardini vibranti. Il confine tra interno ed esterno si dissolve. La casa unifamiliare dispone di una cucina con vista panoramica, un soggiorno aperto e una sala da pranzo collegata alla piscina a sfioro, una camera da letto con vasca in cemento fatta a mano, costruita in loco e una terrazza con una vista mozzafiato sull’oceano.
Sia il sistema di costruzione che i materiali impiegati sono stati derivati da risorse locali. I blocchi in cemento rifiniti con stucco bianco modellano le pareti, mentre il cemento levigato esalta la qualità architettonica di pavimenti e mobili fissi. Per i caldi mobili interni, armadi, porte e infissi, è stato utilizzato il legno locale Parota, per la sua resistenza all’umidità, alla salinità nell’aria e all’esposizione alla forte luce del sole.
Parte di una più ampia iniziativa di ricerca, CASA LT si trova a pochi passi da altri edifici progettati da Main Office, come CASA GALERIA, un complesso residenziale di nuova costruzione che è rapidamente diventato un punto di riferimento in città, e la prossima CASA REAVIS, una casa privata da completare entro la fine del 2018.
























