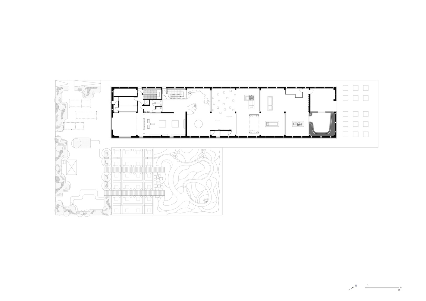
Il Padiglione Marocco a Milano Expo 2015 si concentra sul concetto di ruralità e di diversità e sulla ricchezza dei suoi territori.
Si estende per tutta la lunghezza del sito da nord a sud, il padiglione conduce il visitatore in un viaggio metaforico attraverso il paese dal Mediterraneo al Sahara, mettendo in evidenza l’agricoltura e le tradizioni specifiche per ogni regione.
Facendo riferimento alla materialità e la sensualità delle costruzioni rurali in Marocco, il Padiglione del Marocco presenta una reinterpretazione contemporanea di strutture tradizionali in terra.
Il mattone è collocato all’interno di enormi pannelli prefabbricati in legno, che vengono poi montati su un telaio in acciaio. Questo metodo si adatta all’uso di materiali tradizionali con metodi costruttivi industrializzati. Alla fine di Expo Milano, i pannelli saranno smontati e riutilizzati.
Photo credit: Luc Boegly




















